14 properties in Sector 25 YEIDA








































Aurum Alumni Accord
₹1.5Cr
Aurum Alumni's Accord is a luxury residential project spanning 3 acres with around 83% open space, offering a tranquil environment. The design ensures privacy and a close-knit community feel, featuring 210 exclusive 4BHK units, each 3025 sq. ft., with only two flats per floor. The 9-foot wide semi-wrap-around balconies provide stunning panoramic views, blending indoor and outdoor living. With modern design, dedicated parking, and meticulous attention to detail, Aurum Alumni delivers a sophisticated lifestyle, combining luxury, comfort, and elegance in every aspect. Bank Account Details ACCOUNT NUMBER- 50200102827063 NAME OF ACCOUNT HOLDER- FCPL AURUM ALUMNI ACCORD COLLECTION AC ACCOUNT TYPE- Current NAME OF BANK- HDFC Bank Ltd. BRANCH NAME- Eldeco Studio, Plot No.3, Sector 93 A BRANCH CITY- Noida 201301 IFSC- HDFC0002830











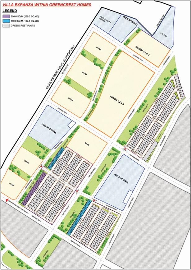
Jaypee Villa Expanza Green Crest Homes
₹73.1L - ₹1.1Cr
Villa Expanza Green Crest Homes is a residential project by Jaypee Greens located at Sector 25 Yamuna Express Way in Noida. The key amenities of the project include Sports Facility, Club House, 24 X 7 Security. Owing to its location, facilities such as schools, hospitals, ATMs, and markets are available at a close distance from Villa Expanza Green Crest Homes. An extensive network of public transports in the close vicinity makes the project accessible.

Jaypee Budh Circuit Studios II
Price on request
Jaypee Budh Circuit Studios II is a residential project in Sector 25 Greater Noida, Greater Noida. There is 1 building for sale. Jaypee Budh Circuit Studios II is located in Yamuna Expressway. The project is developed by Jaypee Greens. Jaypee Budh Circuit Studios II is equipped with various resident-centric amenities that includes Gymnasium, Power Backup. For families with kids, there is Children's Play Area, nearby apart from Swimming Pool. Enjoy a class-apart lifestyle at Jaypee Budh Circuit Studios II. Bank finance is approved by major financial institutions like HDFC, LIC Housing Finance, Punjab National Bank . Located close to prominent suburbs of Greater Noida, the area of Yeida has prominent schools and hospitals within a close distance.




















Solitairian City
₹59.0L - ₹3.0Cr
Where Luxury Meets Nature Welcome to Solitairian City, a majestic residential township designed to offer a perfect blend of comfort, elegance, and serenity. Crafted for those who seek a peaceful lifestyle without compromising on modern luxuries, Solitarian City redefines premium living in Delhi NCR. A Peaceful Retreat Amidst Nature Nestled away from the chaos of the main city, Solitairian City offers a calm and soothing environment surrounded by natural beauty. With 80% dedicated green area, residents enjoy fresh air, open landscapes, and one of the lowest AQI levels in Delhi NCR within the project premises. Experience life in harmony with nature while staying connected to the conveniences of urban living. Prime & Strategic Location Just opposite the F1 Racing Track Excellent connectivity to major highways and city hubs Peaceful surroundings with easy access to modern infrastructure The strategic location enhances both lifestyle and investment value. Thoughtfully Designed Residences Solitairian City offers a range of premium living options: Spacious Apartments starting from 665 sq. ft. Low-density project ensuring privacy and exclusivity Uber Luxury Villas for an elite lifestyle Elegant layouts with modern architecture Abundant natural light and ventilation Every home is designed to provide comfort, sophistication, and functionality. Solitairian City - Live Naturally. Live Luxuriously. Experience a lifestyle where tranquility, elegance, and modern comfort come together seamlessly.










































































































































































































Speedway Avenue
₹92.5L - ₹1.9Cr
Speedway Avenue is an ultra modern residential project envisioned on a huge expanse of area that is complete with lush green surroundings and aesthetic vistas all around.. These spacious apartments are full of finest facilities and also offer world class residential units with top line specifications. Located at an excellent locality which is far from the fuzziness of the city. With good quality of superior designs, its sure that you will love the place where you will get your bright future. If you want to proceed for investment, you will gain higher profits in future as it is close to the civic amenities of the metropolis.




Jaypee Country Homes
₹57.1L - ₹91.2L
Situated in Noida at Sector 25 Yamuna Express Way, Country Homes is a residential development launched by Jaypee Greens. This project is under construction with possession scheduled in possession on May 13. This project provides a vast range of amenities including Power Backup. Prominent suburbs of Noida are close by and with several schools, hospitals, banks and offices situated in the proximity, the project is a preferred choice for home seekers.



















Imperia Mirage Homes
₹1.1Cr - ₹1.2Cr
Aesthetically designed, Mirage offers an elegant living lifestyle to its residents. Dotted with manicured lawns and exquisite shrubs and plants truly allows you to experience in the lap of nature. Every apartment of the project are specially designed to let in an abundance of natural light, creating a sprightly, effervescent and spacious living sanctuary to its residents. Taste fully crafted, this project is a dream home bathed in luxury par excellence. Embrace an enchanting experience at Mirage and live your life to the fullest with your loved ones. Greater Noida's residential project, Imperia Mirage Homes is offering property for sale. Check out some Apartment. Available configurations include 3 BHK formats in Yeida. It is a Ready to Move project by Imperia Structures Ltd. Imperia Mirage Homes is set in an area of 5 Acres and is complete with various modern-day amenities. As per the area plan, units are in the size range of 1350.0 - 1450.0 sq.ft.. Imperia Mirage Homes was launched in June 2013 and possession date is Mar, 2021. There are 629 units in Imperia Mirage Homes. There are 6 buildings. Imperia Mirage Homes is located in Jaypee Sports City, Sector 25 Yamuna Expressway. There are multiple amenities for residents at Imperia Mirage Homes which includes Gymnasium, Power Backup. Young families with children will love the Children's Play Area, School, nearby apart from Swimming Pool, Sports Area. Sports enthusiasts will like the Tennis Court, Basketball Court, Badminton Court, Cycling & Jogging Track, Golf Course. Enjoy access to ATM, provisions in the project. There is 24x7 Security. Other provisions include access to Landscaping & Tree Planting, Sewage Treatment Plant, Shopping Mall, Staff Quarter. Own a home in Imperia Mirage Homes today!. Imperia Mirage Homes is a RERA registered project with ID UPRERAPRJ3142 & UPRERAPRJ4008. Yeida is well-connected to other parts of city by road, which passes through the heart of this suburb. Prominent shopping malls, movie theatres, school, and hospitals are present in proximity of this residential project.


















F Premiere
Price on request
H&S in association with Fashion TV presents f-Premiere, a residential hub overlooking motor racing track on Yamuna Expressway. With fashion in its heart and soul, f-premiere features the signature 'Diamond' right at the entrance, alluring double height lobbies, designer elevators, an exclusive sky lounge and a fully loaded club house with a grand swimming pool. f-premiere offers well designed 2&3 bedroom residences for the millennial generations to make a unique fashion statement.







































Imperia Prideville
₹90.0L - ₹1.1Cr
Imperia Prideville is an upcoming housing project at Yeida in Yeida, being developed by Imperia Structures Ltd. Keeping in mind the needs of modern lifestyle of residents, the project provides various amenities. Imperia Prideville encompasses amenities such as Restaurant , Children's Play Area, Spa/Sauna/Steam, Gymnasium and Golf Course. ATMS, medical facilities, education institutions, and parks are within easy reach. The area is also well-connected by bus and road network.





Imperia The Sephyra
Price on request
No description available.




















Presidency Heights
₹96.8L - ₹1.4Cr
Designed to offer you homes that exudes a royal charm, Presidency Heights is a lavish project located at a prime area. Offering you panoramic views from your homes, this lavish tower lets you live amidst tranquility. Buzzing with life, Presidency Heights is sure to replenish your senses with grandeur and splendor. Reflecting style and vogue, the homes here have been thoughtfully designed and executed. The beauty of this iconic residency gets further accentuated with a touch of glamor and glitz. Indulge in the magnificence of this exclusive tower and lead a more vibrant, meaningful and unforgettable lifestyle at Presidency Heights.




























Home And Soul Beetle Lap
Price on request
Beetle Lap, an exhilarating residential destination located at Jaypee Sports City, is one of the fastest emerging projects in NCR. Located just off the Yamuna Expressway and Eastern Peripheral Expressway. Beetle Lap offers ultra-modern and spacious residences. Complete with all contemporary recreational amenities and daily conveniences, Beetle Lap is an ideal destination for the young millennials of Delhi NCR.